FORUM WERKSTATT STORIES ARCHIV KLEINANZEIGEN

Steckerbelegung

02erS14, Donnerstag, 19.06.2025, 11:48 (vor 227 Tagen)

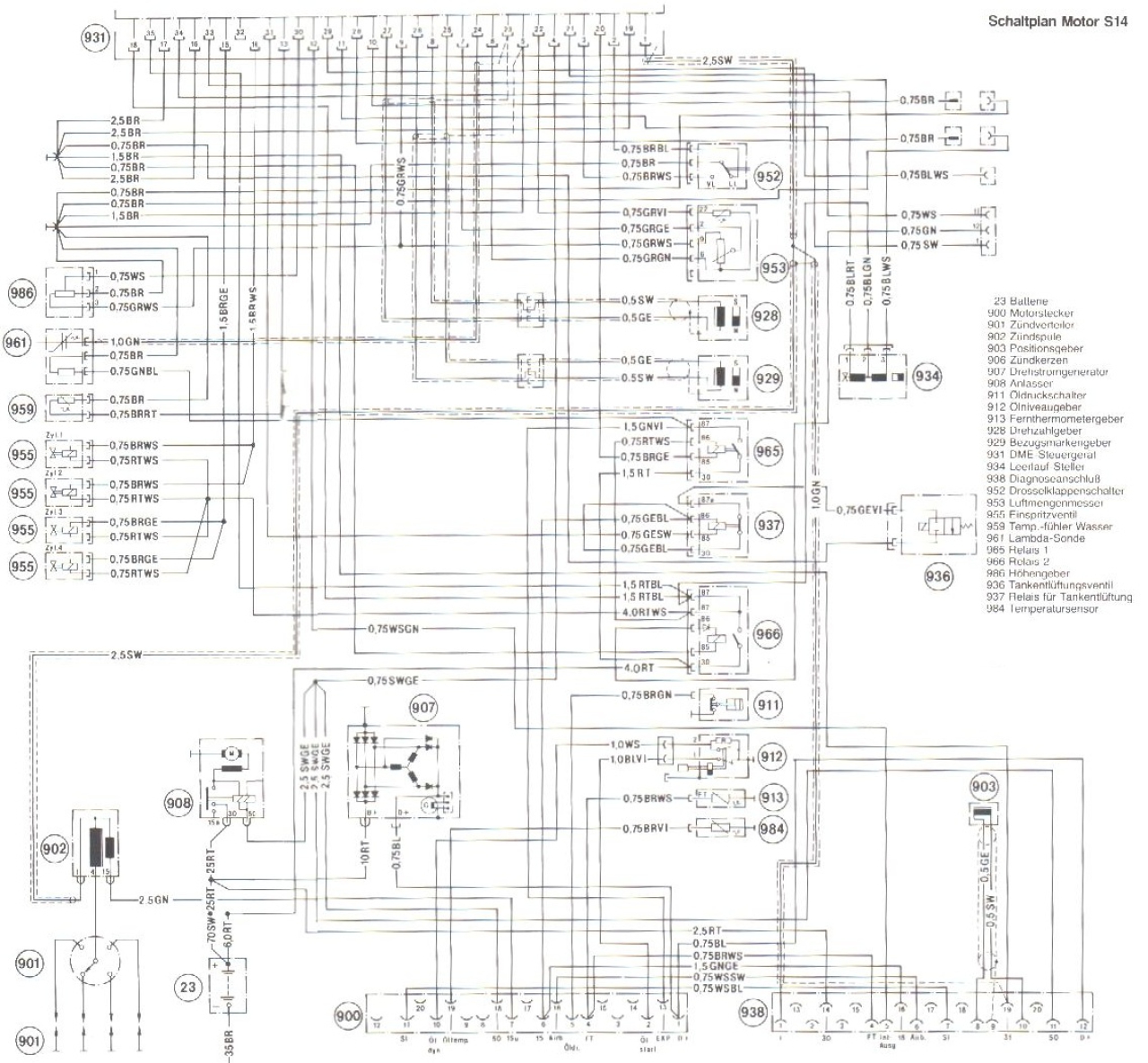
Hi, kann mir jemand sagen, was sich auf der anderen Seite des 3er Stecker (Stromlaufplan rechts oben 0,75 WS / 0,75 GN / 0,75 SW befindet? WS und SW kommen direkt vom Steuergerät und GN kommt vom Relais Einspritzng 966[image]

Avatar

Steckerbelegung

tino335i @, Donnerstag, 19.06.2025, 16:10 (vor 227 Tagen) @ 02erS14

Das ist der typische 3polige stecker im Handschuhfach jedes E30 bis 1987. von gehen Drehzahl und Verbrauch zum Cockpit und das grüne Kabel kriegt zündplus vom Zündschloß oder dem BC (Wegfahrsperre).

mfg tino

Steckerbelegung

02erS14, Donnerstag, 19.06.2025, 16:15 (vor 227 Tagen) @ tino335i

Dank dir. Das hat mir geholfen

powered by my little forum